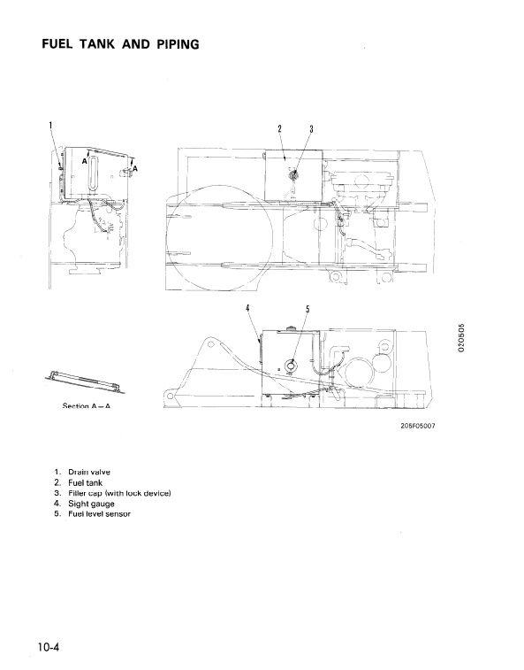
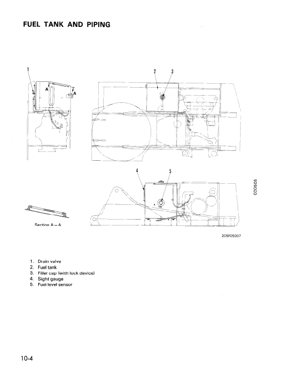
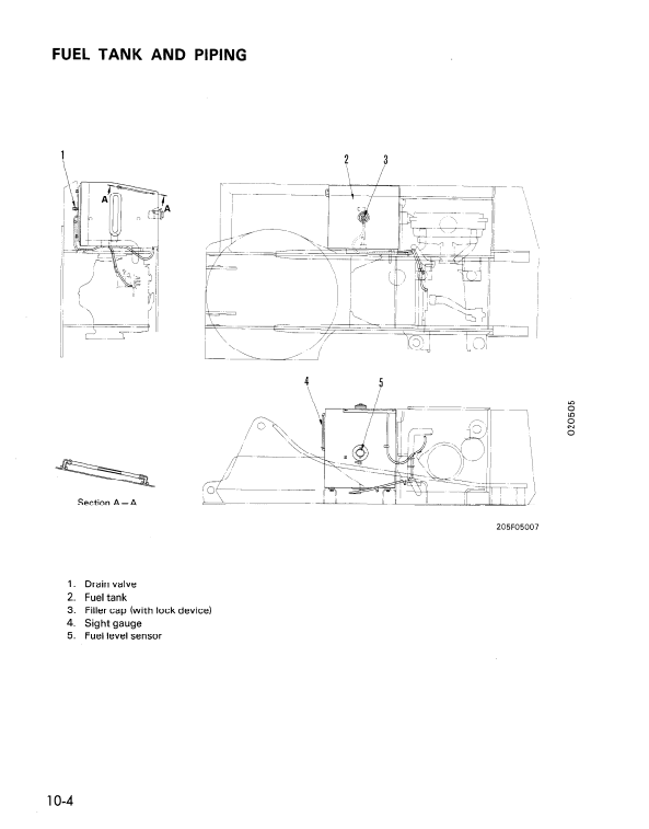
manualesdemaquinaria
Manual de Reparación Excavadota Komatsu PC200-5, PC200LC-5, PC220-5, PC220LC-5
Manual de Reparación Excavadota Komatsu PC200-5, PC200LC-5, PC220-5, PC220LC-5
Precio habitual
$26.91 USD
Precio habitual
Precio de oferta
$26.91 USD
Precio unitario
/
por
No se pudo cargar la disponibilidad de retiro


