manualesdemaquinaria
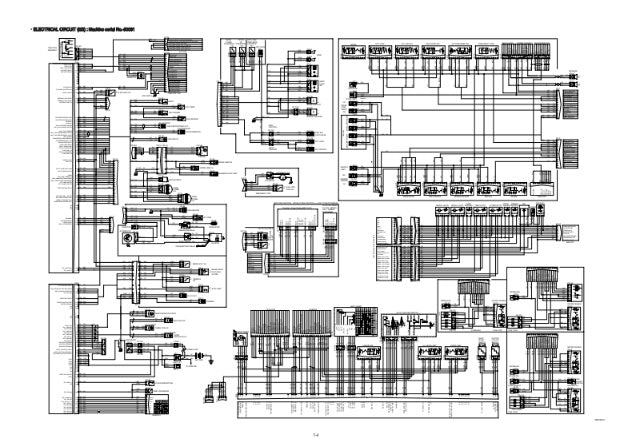
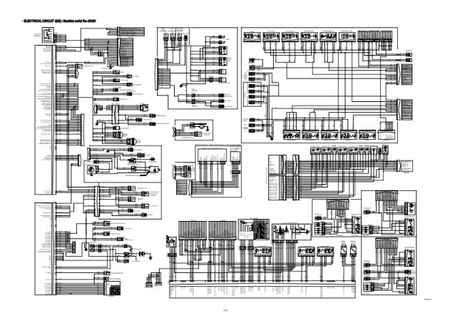
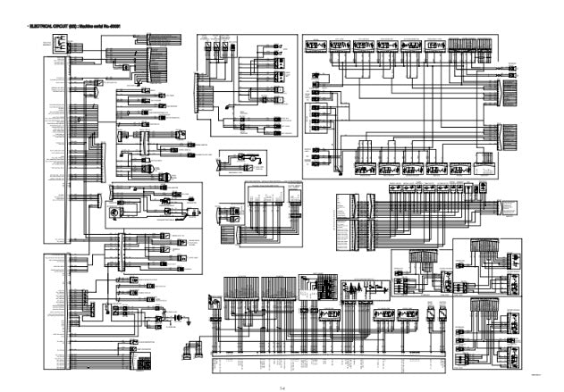
MANUAL DE SERVICIOS CARGADORA FRONTAL HL780-9
MANUAL DE SERVICIOS CARGADORA FRONTAL HL780-9
Precio habitual
$29.60 USD
Precio habitual
Precio de oferta
$29.60 USD
Precio unitario
/
por
No se pudo cargar la disponibilidad de retiro


